Geräumige 3-Zimmer-Wohnung TOP geschnitten mit West-Loggia

85521 Ottobrunn, Etagenwohnung zur Miete

Kontaktdaten

vermietet

Dieses Objekt ist zur Zeit leider nicht verfügbar.

Objektdaten

  • Objekt ID
    01-01-36
  • Objekttypen
    Etagenwohnung, Wohnung
  • Adresse
    85521 Ottobrunn
    Bayern
  • Wohnfläche ca.
    80,34 m²
  • Zimmer
    3
  • Schlafzimmer
    2
  • Badezimmer
    1
  • Loggien
    1
  • Balkone
    1
  • Heizungsart
    Zentralheizung
  • Wesentlicher Energieträger
    Holz/Hackschnitzel
  • Baujahr
    1973
  • Letzte Modernisierung
    2020
  • Ausstattung
    Standard
  • Kaltmiete
    1.245,00 EUR
  • Nebenkosten
    310,00 EUR

Ausstattung / Merkmale

  • ✓ Badewanne
  • ✓ Balkon
  • ✓ Fliesenboden
  • ✓ Keller
  • ✓ Loggia
  • ✓ Parkettboden
  • ✓ Personenaufzug

Energieausweis

  • Energieausweistyp
    Verbrauchs­ausweis
  • Ausstellungsdatum
    09.01.2018
  • Gültig bis
    09.01.2028
  • Gebäudeart
    Wohngebäude
  • Baujahr
    1973
  • Primärenergieträger
    Holz-Hackschnitzel
  • Endenergie­verbrauch
    125 kWh/(m²xa) kWh/(m²·a)
  • Energie­effizienz­klasse
    D
0 25 50 75 100 125 150 175 200 225 250+ H G F E D C B A A+ H G F E D C B A A+ Endenergieverbrauch 125 kWh/(m²xa) kWh/(m²·a)

Objekt­beschreibung

Beschreibung

- bitte keine Anrufe, Anfragen bitte nur über Immoscout -
- please no calls, inquiries only via Immoscout please -

Hagemeister Immobilien bietet Ihnen diese attraktive 3-Zimmer-Wohnung im qualifizierten Alleinauftrag an.
Die Wohnung befindet sich im 5. OG einer gepflegten Wohnanlage aus dem Jahr 2006 (Gebäudeteil: 1973) im Herzen Ottobruns.

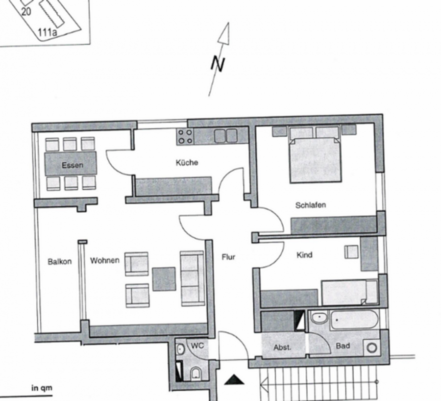
Sie erreichen die Wohnung durch ein gepflegtes Treppenhaus. In der Wohnung befinden sich 3 Zimmer und ein separater Essbereich, wo Sie Platz für einen großen Esstisch haben.

Das Herz der Wohnung ist das geräumige Wohnzimmer mit direktem Zugang zur West-Loggia. Hier kann man den Feierabend gut ausklingen lassen.

Neben dem Wohnzimmer befindet sich das Schlafzimmer, welches genug Platz für einen großen Schrank und ein XXL-Bett bietet. Als nächstes kommt das Kinder-/Arbeitszimmer.

Bad mit Badewanne und WC sind getrennt voneinander. So haben Sie mehr Platz für Ihr Badevergnügen.

Die Einbauküche kann vom Vormieter zu einem fairen Preis abgelöst werden.

Zur Wohnung gehört ein praktisches Kellerabteil.

Zu den Vorteilen der Wohnanlage gehört zudem eine Waschküche.

Machen Sie sich selbst ein Bild von dieser schönen Wohnung.
Bitte kontaktieren Sie uns! Wir laden Sie dann herzlich zu einem Besichtigungstermin ein.

Ausstattung

- West-Loggia
- Parkett in allen Wohnräumen
- toller Schnitt der Wohnung
- extra Essbereich
- großes Wohnzimmer

Sonstige Informationen

Der Grundriss ist nur Beispielhaft und dient lediglich der Veranschaulichung.

Alle Angaben sind ohne Gewähr und basieren ausschließlich auf Informationen, die uns von unserem Auftraggeber zur Verfügung gestellt wurden. Wir übernehmen keine Gewähr oder Haftung für die Vollständigkeit, Richtigkeit und Aktualität dieser Angaben.

Lage

Die Gemeinde liegt im südöstlichen Umland von München. Von der Ottobrunner Ortsmitte zum Marienplatz in München sind es in der Luftlinie zehneinhalb Kilometer. Die Entfernung zu den Nachbargemeinden beträgt von Ortsmitte zu Ortsmitte 2,4 (Neubiberg) bis 5,4 (Taufkirchen) Straßenkilometer.

Mehrere Buslinien (214,241 und 229) sind fußläufig zu erreichen. Die Linie 229 fährt in wenigen Minuten zur Haltestelle U5 Neuperlach-Süd. Auch die S-Bahn-Haltestelle Ottobrunn ist nicht weit entfernt und kann zu fuß oder mit dem Bus erreicht werden.

Lebensmittelläden (REWE etc.), sowie Apotheken, Restaurants, Wirtshäuser sind ebenfalls in der Nähe. Auch das Ottobrunner Gymnasium sowie eine Grundschule und Kitas sind in nur wenigen Fahrminuten erreichbar.

Die nächstgelegenen Wälder – der Höhenkirchener Forst, der Perlacher Forst, der Hofoldinger Forst und der Grünwalder Forst – befinden sich allesamt in einem Umkreis von höchstens zehn Kilometern. Unter den Naherholungsgebieten Oberbayerns sind der Starnberger See und der Tegernsee keine 40, der Schliersee knapp 45 und das Skigebiet am Brauneck bei Lenggries nicht ganz 55 Straßenkilometer von Ottobrunn entfernt.

Die dargestellte Position der Immobilie ist nur eine ungefähre Angabe.

Immobiliendaten-Import und Darstellung für WordPress: WP-ImmoMakler®